Наземное лазерное сканирование является высокоточным, оперативным и объективным видом геодезических съемок. Использование этого метода происходит во время проектирования строительства, обследований различных сооружений. Компания «СтарГео» предоставляет услуги наземного сканирования и создания 3D-моделей для ваших целей.
Применение наземного лазерного сканирования позволяет оперативно собрать геопространственную информацию, помогающую получить детальные и точные геометрические (пространственные) данные, которые необходимы при исполнении различных работ:
Наша команда обладает значительным опытом в данных работах и создании необходимой документации на разных объектах и стадиях, включая объекты культурного наследия.
Технология наземного лазерного сканирования представляет собой создание цифровых моделей местности, в виде массива точек и координат. Для съемки специалисты используют специальную технику – сканеры и компьютеры для обработки полученных данных. В этом случае сканер является приспособлением для съемки, которое на большой скорости измеряет расстояние до определенного объекта. После съемки вся информация отправляется на обработку на ПК и формирование трехмерного растрового изображения.
Области применения наземного лазерного сканирования довольно широки: это и промышленные объекты и территории, фасады зданий, мосты, тоннели, транспортные развязки, карьеры, строительство различных объектов и контроль над ним. Используется наземное 3D лазерное сканирование при исследованиях на небольших территориях и объектах.
В результате такого исследования получается высокоточная картографическая продукция, выполненная за короткие сроки: цифровые и 3D-модели, карты и планы, сечения, чертежи и схемы и прочее.
Существуют 4 основные этапа проведения работ по сканированию:
Весь процесс съемки проходит в реальном времени и может проходить в любое время суток.
Используемое оборудование:
Лазерный сканер Teledyne Optech Polaris
Лазерный сканер Leica BLK360
Используя инструменты оцифровки в применяемых САПР, а также полноту и высокое качество данных с лазерного сканирования, наша команда легко получает актуальные и точные исходные данные для чертежей и моделей
Используемое программное обеспечение:
САПР
Autodesk AutoCAD
Bricsys BricsCAD

Для создания: обмерных чертежей строений, помещений (фасады, планы, развертки стен, план коммуникаций и пр.).
Моделирование
Autodesk AutoCAD, Autodesk Revit, Trimble SketchUp, Graphisoft ArchiCAD

Для создания:трехмерных моделей строений, помещений и пр. информационных моделей (BIM)

Пример получаемого облака точек
Лазерное сканирование применяется при получении данных широкого спектра объектов и участков земной поверхности. Отличительная особенность: сканер можно использовать без света (например, ночью или в неосвещенных местах)

Сканирование ночью строящегося объекта с целью создания обмерных чертежей. г. Севастополь

Сканирование подземных помещений. г. Севастополь
Готовые к экспорту облака точек, по мимо векторной информации на компьютере, также могут быть использованы, как вспомогательный материал: например, как абрисы для работ по техническому обследованию сооружений (печать данных на листах предварительно перед выездом на объект). Существенным плюсом является высокая точность данных, высокое разрешение и отсутствие искажений

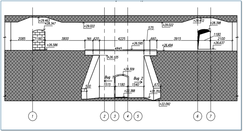
Пример облака точек фасада сооружения отсканированного для целей трехмерного моделирования и подготовки материалов технического обследования для дальнейшего проекта реконструкции.
Лазерное наземное сканирования является простым, быстрым и относительно недорогим способ получения данных при проектировании и строительстве. Такая методика имеет ряд своих достоинств:
В зависимости от объемов требуемого исследования, стоимость становится ниже, чем при традиционных геодезических съемках – чем больше объект, тем выгоднее.
Компания «СтарГео» предлагает свои услуги по лазерному наземному сканированию по всем регионам России, наши исследования уже успешно применяются в сотнях проектах. С каждым клиентов мы работаем индивидуально и определяемся по планам работ согласно целям и объемам исследований.
Получить консультацию и воспользоваться услугой можно обратившись на сайте или по телефонам.